Bevendean History Project Photos
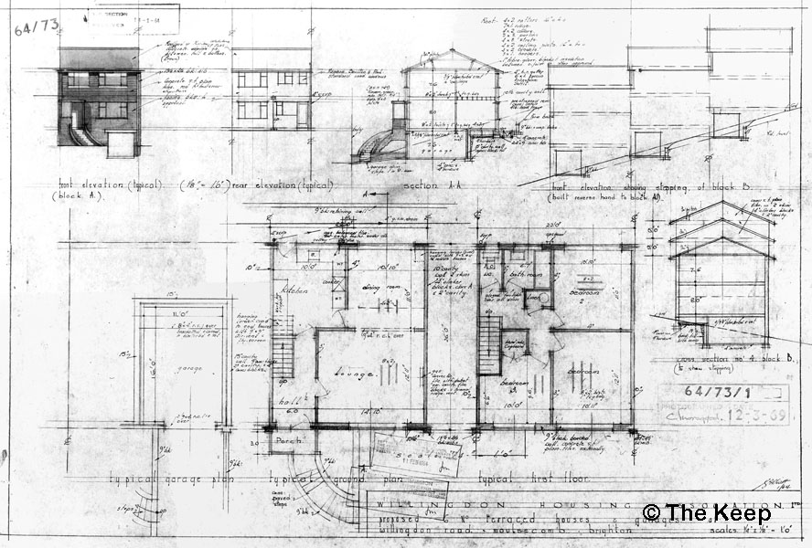
Jevington Drive and Willingdon Way Plans