
The Estate - Bevendean History Project


The Bevendean Hospital part 4

Smallpox in Brighton
In December 1950 two Brighton residents were admitted to Bevendean Hospital and were found to be suffering from smallpox.
This put Bevendean Hospital in the headlines and while the town was searched for contacts the hospital coped with thirty-six cases and was sealed off from the outside world. Ten people died, including six hospital staff.
The outbreak was declared over after 43 days and on 6 February 1951 the gates were opened again and the staff given two weeks holiday while the hospital was fumigated. After this the hospital dealt with more general illness, in particular chest problems.
Improved X-ray and Diagnostic Facilities
In 1967 a diagnostic theatre and companion X-ray department were built, which was necessary so that the hospital could maintain and extend its diagnostic services to the Brighton area.
The theatre and X-ray department provided excellent facilities for the diagnosis of chest conditions and the hospital provided longer stay accommodation for patients who needed this. December 1968 saw the opening of a new Day Hospital for Psycho-geriatric patients. This development proved a great success with the Day Hospital being housed in one of the original hospital wards which had been redecorated and modernised.

Photographs of Bevendean Hospital in the late 1970s or early 1980s



By 1981 the buildings were showing their age and beginning to crumble. Rain came in through the roofs and the wards had not been painted since 1969.
In 1987 the kitchen block was demolished and from then on food was cooked at Brighton General Hospital and transported to Bevendean. The hospital closed on 24 April 1989.
The last hospital ward to close was Willow Ward, the day ward for psycho-geriatrics which remained open until 26 September 1990 when a new location had been found.
In 1992 Sycamore Court a development of 40 houses with care units was built for the Anchor Housing Association on Bear Road east of the junction with Bevendean Road in the former Hospital site.
The rest of the site was sold for housing, with demolition starting in April 1993.
All that now remains in the 21st century is the high flint boundary wall and the lodges and gates at the entrance to the old hospital.

The Sussex Beacon
The northern corner of the site bounded by Bevendean Road and Meadow View is now occupied by the Sussex Beacon. It opened in 1992, although fund raising for the charity had started a few years earlier.
It provides specialist care and support for people living with HIV. The service provides both inpatient and outpatient services.
The building has a 10-bed inpatient unit, therapy rooms and larger rooms for group work. There is also a landscaped garden for patients and visitors.

Fulking Grange
Brighton Sanatorium at Bevendean was too close to built-up areas to be allowed to deal with highly infectious diseases.
The Council bought a farm on Fulking Hill near Devil’s Dyke in 1901 and converted the farm buildings into an isolation hospital, known as Fulking Grange, for smallpox cases.
The farmhouse was used as the administration block and the barn was converted into two wards, each accommodation for 24 patients.
Bevendean Hospital Photographs 1898 to 2020
Bevendean Hospital Plans 1898 to 1892
Robert Brown remembers working at Bevendean Hospital
Andrew Whitehead remembers working at Bevendean Hospital
If you have any pictures or memories of the hospital to share please use the contacts page.

Smallpox in Brighton
In December 1950 two Brighton residents were admitted to Bevendean Hospital and were found to be suffering from smallpox.
This put Bevendean Hospital in the headlines and while the town was searched for contacts the hospital coped with thirty-six cases and was sealed off from the outside world. Ten people died, including six hospital staff.
The outbreak was declared over after 43 days and on 6 February 1951 the gates were opened again and the staff given two weeks holiday while the hospital was fumigated. After this the hospital dealt with more general illness, in particular chest problems.
Improved X-ray and Diagnostic Facilities
In 1967 a diagnostic theatre and companion X-ray department were built, which was necessary so that the hospital could maintain and extend its diagnostic services to the Brighton area.
The theatre and X-ray department provided excellent facilities for the diagnosis of chest conditions and the hospital provided longer stay accommodation for patients who needed this. December 1968 saw the opening of a new Day Hospital for Psycho-geriatric patients. This development proved a great success with the Day Hospital being housed in one of the original hospital wards which had been redecorated and modernised.

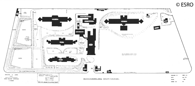
The Bevendean Hospital site in the 1960s
Photographs of Bevendean Hospital in the late 1970s or early 1980s

The Administration block viewed from just inside the entrance gates.

Looking towards the Porters Lodge and Gates with Dudeney Lodge,
which was built in 1966, in the distance on the right.
which was built in 1966, in the distance on the right.

Bevendean Hospital Wards 1, 2 and 3.
These wards originally formed the Isolation Pavilion.

These wards originally formed the Isolation Pavilion.

Bevendean Hospital Mortuary
This was built in the south east corner of the site.
This was built in the south east corner of the site.
By 1981 the buildings were showing their age and beginning to crumble. Rain came in through the roofs and the wards had not been painted since 1969.
In 1987 the kitchen block was demolished and from then on food was cooked at Brighton General Hospital and transported to Bevendean. The hospital closed on 24 April 1989.
The last hospital ward to close was Willow Ward, the day ward for psycho-geriatrics which remained open until 26 September 1990 when a new location had been found.
In 1992 Sycamore Court a development of 40 houses with care units was built for the Anchor Housing Association on Bear Road east of the junction with Bevendean Road in the former Hospital site.
The rest of the site was sold for housing, with demolition starting in April 1993.
All that now remains in the 21st century is the high flint boundary wall and the lodges and gates at the entrance to the old hospital.

The Gates of the former Bevendean Hospital in July 2020
The Sussex Beacon
The northern corner of the site bounded by Bevendean Road and Meadow View is now occupied by the Sussex Beacon. It opened in 1992, although fund raising for the charity had started a few years earlier.
It provides specialist care and support for people living with HIV. The service provides both inpatient and outpatient services.
The building has a 10-bed inpatient unit, therapy rooms and larger rooms for group work. There is also a landscaped garden for patients and visitors.

The Sussex Beacon in July 2020.
Fulking Grange
Brighton Sanatorium at Bevendean was too close to built-up areas to be allowed to deal with highly infectious diseases.
The Council bought a farm on Fulking Hill near Devil’s Dyke in 1901 and converted the farm buildings into an isolation hospital, known as Fulking Grange, for smallpox cases.
The farmhouse was used as the administration block and the barn was converted into two wards, each accommodation for 24 patients.
Bevendean Hospital Photographs 1898 to 2020
Bevendean Hospital Plans 1898 to 1892
Robert Brown remembers working at Bevendean Hospital
Andrew Whitehead remembers working at Bevendean Hospital
If you have any pictures or memories of the hospital to share please use the contacts page.
