Bevendean History Project Photos
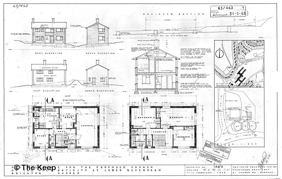
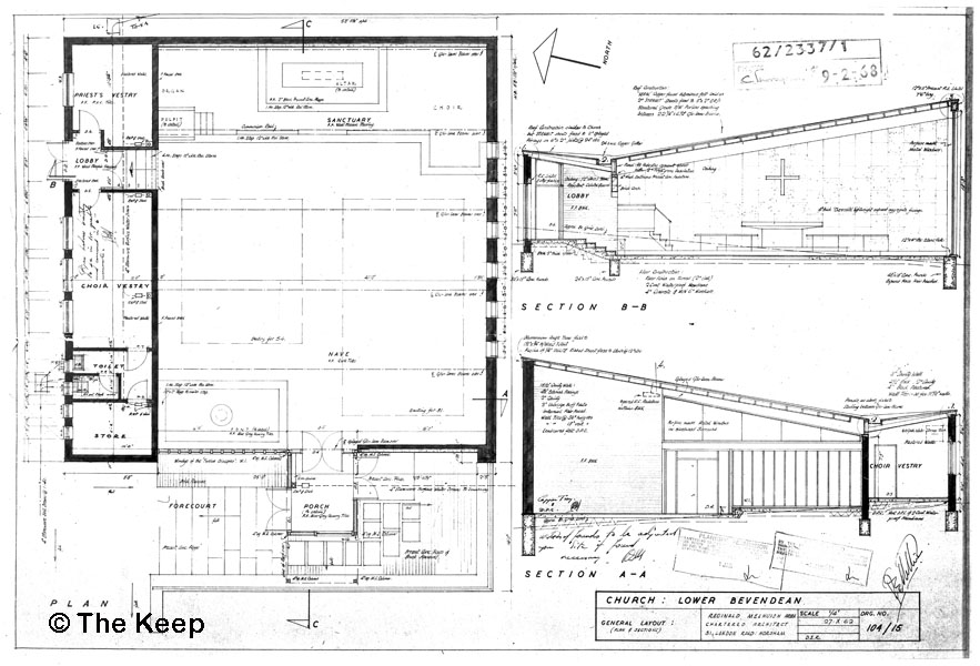
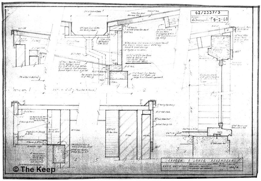
Plans for the Church of the Holy Nativity