Bevendean History Project Photos
Partridge House Photographs and Plans
Photographs of Partridge House 1953 to c1990
.
Photographs of the front of Partridge House in the 21st century.
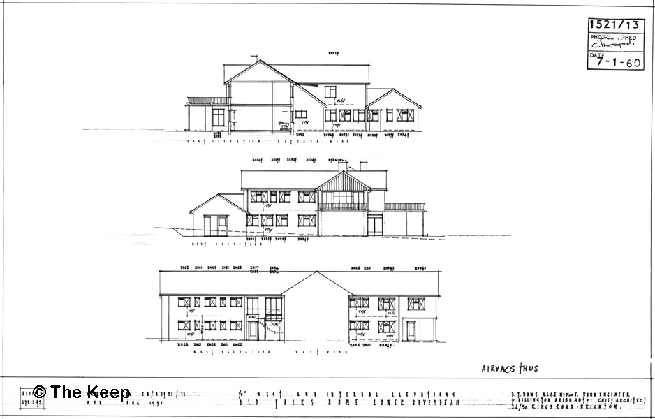
Plans of the original Partridge House.
Plans for the new Partridge House dated 1997