
Churches - Bevendean History Project

The Robertson Hall, 35 Ship Street

The Robertson Hall
35 Ship Street next door to the Holy Trinity Church was sold by C Burt Brill to the trustees of the Holy Trinity Church for £3,855 10s on the 28th September 1925.
The building had previously been used as a brewers and wine merchants then by an ironmongery company.
There is a bronze plaque on the upper floor with the text:-
“This Hall was opened and names THE ROBERTSON HALL by Her Royal Highness the Princess Louise. Duchess of Argyll on October 18th 1929.
This panel was unveiled on the occasion by Miss Margaret Robertson Grand Daughter of F. W. Robertson.”
The Robertson Hall was dedicated by the Lord Bishop of Chichester on 26th September 1929.

An
agreement for the hire of offices at 35 Ship Street was signed on the
26th June 1933. The area marked blue on the plan shows the area
occupied by 35 Ship Street.

In September 1939 a plan was drawn up to use the Robertson Hall as an Air Raid Shelter. The plan was not proceeded with and the hall was not used as an air raid shelter during World War 2.
National Provincial Bank
A lease was signed on the 27th October 1959 for the National Provincial Bank Limited to use the ground floor and basement as a bank.

Ground Floor Plan dated May 1959.

Architects drawing showing the proposed front elevation in May 1959.

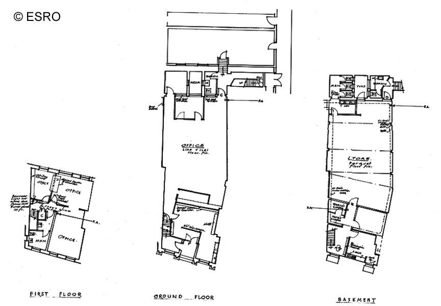
Architects' plans of The Robertson Hall in Ship Street Brighton, dated 22 December 1972.
In 2001 a planning application was submitted to change the use of the building from a bank to a retail shop with ancillary coffee shop.
The premises were used by Steamer Trading Cook Shop from 2001 to 2018 for the sale of kitchen equipment.
In January 2019 the premises were taken over by Pro Cook when Steamer Trading Cook Shop ceased trading.
35 Ship Street next door to the Holy Trinity Church was sold by C Burt Brill to the trustees of the Holy Trinity Church for £3,855 10s on the 28th September 1925.
The building had previously been used as a brewers and wine merchants then by an ironmongery company.
There is a bronze plaque on the upper floor with the text:-
“This Hall was opened and names THE ROBERTSON HALL by Her Royal Highness the Princess Louise. Duchess of Argyll on October 18th 1929.
This panel was unveiled on the occasion by Miss Margaret Robertson Grand Daughter of F. W. Robertson.”
The Robertson Hall was dedicated by the Lord Bishop of Chichester on 26th September 1929.


In September 1939 a plan was drawn up to use the Robertson Hall as an Air Raid Shelter. The plan was not proceeded with and the hall was not used as an air raid shelter during World War 2.
National Provincial Bank
A lease was signed on the 27th October 1959 for the National Provincial Bank Limited to use the ground floor and basement as a bank.


Architects drawing showing the proposed front elevation in May 1959.

Architects' plans of The Robertson Hall in Ship Street Brighton, dated 22 December 1972.
In 2001 a planning application was submitted to change the use of the building from a bank to a retail shop with ancillary coffee shop.
The premises were used by Steamer Trading Cook Shop from 2001 to 2018 for the sale of kitchen equipment.
In January 2019 the premises were taken over by Pro Cook when Steamer Trading Cook Shop ceased trading.