
Bevendean History Project Photos
Photographs
and Plans of Moulsecoomb Library

Moulsecoomb Library opened in Moulsecombe Place in December 1929


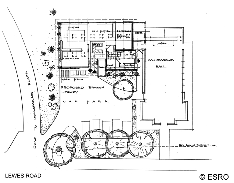
Plans of the new Moulsecoomb Library dated January 1961





Photographs of Moulsecombe Library in the 1960s












Photographs of Moulsecombe Library in the 21st century




